When planning an extension to your home, the drawings you submit to your local authority (and later your builder) are more than artistic sketches, they are a legal, technical and communicative tool. Getting them wrong can delay approval, lead to rejections or cause costly mistakes on site.
In this article, we walk through what your extension planning drawings must include, with particular attention to single storey extensions, kitchen plans, and the constraints of permitted development in the UK. We also show how AA Drafting can guide you every step of the way.
A comprehensive submission should include the following (or more, depending on site complexity):
Drawing Type | Purpose / What It Shows | Key Requirements / Notes |
Location Plan & Site Plan (or Block Plan) | Show the property in context — neighbouring buildings, roads, plot boundaries | Use a standard scale (e.g. 1:1250 for location, 1:500 or 1:200 for site). Include north arrow, scale bar, road names, property outline. |
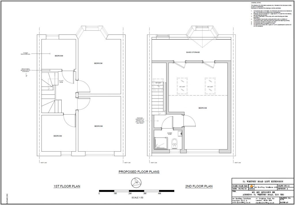
Existing Floor Plans | Current layout prior to extension work | Clearly annotated, dimensioned, and labelled (rooms, walls, doors, windows). |
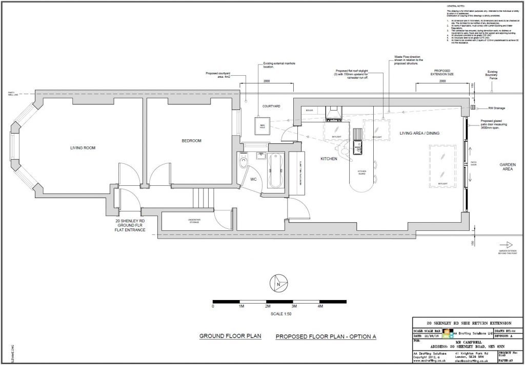
Proposed Floor Plans | How the extension will change the layout | Shows new walls, openings, circulation, doors, furniture layout (especially for kitchen). |
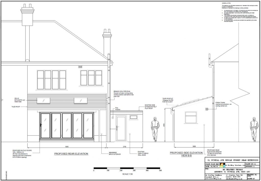
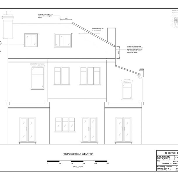
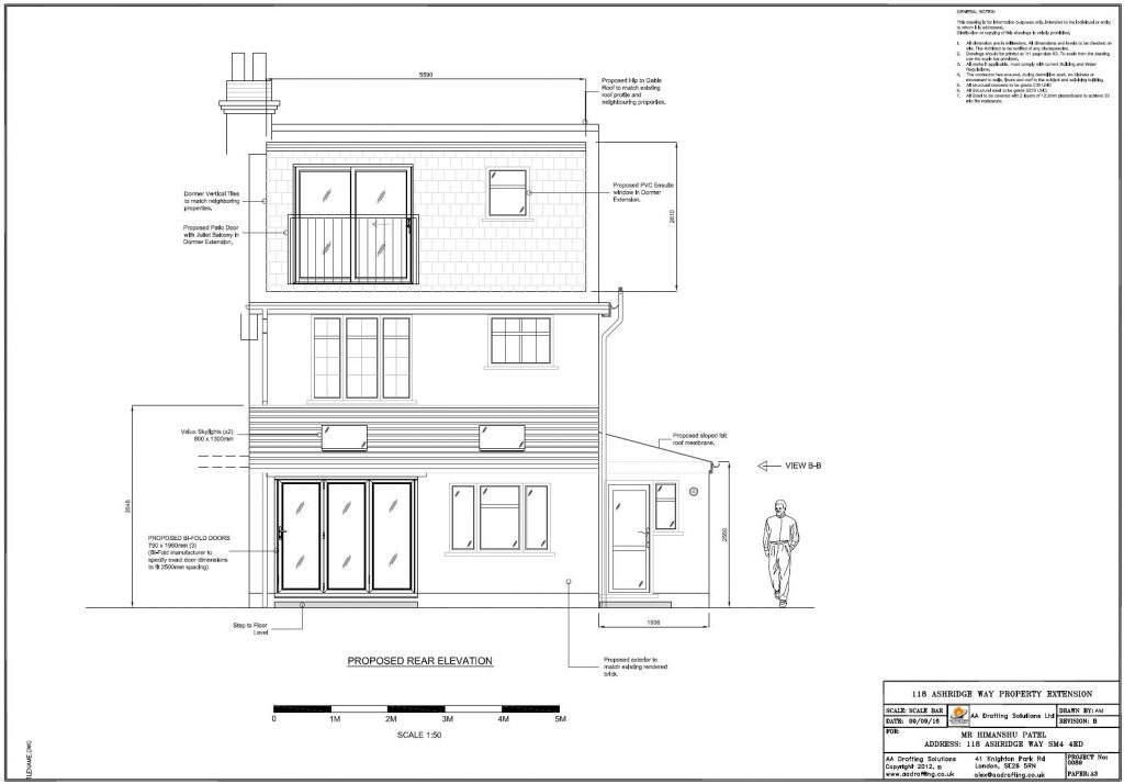
Elevations | Views of all external faces (front, rear, sides) | Show existing vs proposed materials, window/door styles, heights. |
Roof Plan | Outline of roof footprint, slopes, ridges, drainage | Include rooflights, chimneys, drainage fall. |
Sections & Cross‑sections | Vertical cuts through the building | Show floor-to-ceiling heights, ground levels, structural elements (e.g. beams, joists, foundations). |
Detail Drawings | Junctions (wall/roof, wall/floor, parapets etc.) | Clarify insulation layers, damp proofing, flashing, waterproofing. |
Structural Layouts | Beams, lintels, columns, foundation plan | Often prepared in collaboration with a structural engineer. |
Services Layouts | Plumbing, drainage, electrical, ventilation | Especially critical in kitchen extension drawings to show run of pipes and connections. |
Thermal / Insulation / Compliance Diagrams | To demonstrate how the property extension meets energy / building regulation standards | U‑values, ventilation strategy, thermal bridging mitigation. |
Fire Safety & Escape / Openings Near Boundaries | Show escape routes, window sizes / positioning, fire resistance where required | Especially important when windows are near boundaries. |
Many planning authorities have drawing standards you should adhere to. For example, Oxford City Council sets clear guidelines on scales and presentation.
Also note: even if your extension is considered permitted development, you still need building regulation drawings.
Single storey extensions are one of the most common types of residential works. But they come with rules and nuances:
Permitted Development thresholds:
For a detached house, a rear extension can extend up to 4m under permitted development; for terraced or semi‑detached houses, the limit is 3m. If you require more length (e.g. 6m or 8m), you may apply under prior approval under the House Extension Scheme.
Height restrictions:
Single storey rear extensions must generally not exceed 4m in height. If the extension is within 2m of a boundary, the eaves height must be no more than 3m.
Roof types:
Options include flat roofs, mono-pitched, pitched with matching pitch, or rooflights / lanterns. The roof pitch should match or complement the existing house whenever possible under permitted development rules.
Integration with kitchens / open plan layouts:
Many single storey extensions are used to expand or reconfigure kitchen/diner spaces. Your drawings must coordinate plumbing, drainage and appliance layout. Also, consider structural consequences of large openings between old and new spaces.
Daylight & overshadowing:
Ensure windows are sensibly placed, acknowledge neighbour rights and minimise overshadowing of neighbouring properties.
Permitted development (PD) refers to certain works that a homeowner can carry out without needing full planning permission, subject to conditions.
However, even under PD, you’ll often need to submit scaled drawings (existing & proposed, site plan) and potentially a Lawful Development Certificate (LDC) or prior approval in some cases.
Even a seemingly small omission or ambiguity can jeopardise your planning or building control approval. Common pitfalls include:
By contrast, well-drafted drawings minimise ambiguity, help the planners and building control teams understand your proposals faster, and reduce the need for revisions.
The kitchen is often the heart of a home, and when your extension involves a kitchen upgrade, your drawings need to speak both technically and functionally.
Plumbing and drainage: Show the location of sinks, appliances, waste pipes and drainage runs tying into existing mains.
Ventilation / extractors: Indicate extractor fans, duct runs, air inlets, etc.
Large structural openings: If you want a wide opening to integrate old and new space (e.g. removing walls or adding large glazed doors), coordinate with structural drawings.
Flow & circulation: Show layouts of worktops, movement paths, furniture and links to adjoining rooms.
Lighting & natural light: Indicate window sizes, rooflights or glazing arrangements to ensure a bright, workable space.
Including a “furniture layout / kitchen plan overlay” on your proposed plan can give planners and building control a clearer sense of how the space will function.
Here’s a typical project workflow and how your drawing package evolves:
Your drawing package isn’t static — it evolves through feedback and review until final approval.
When you choose AA Drafting for your extension project, you benefit from:
If you’d like to see more of our recent work, visit our Portfolio / Projects page.
Before submitting, ensure your package at least includes:
Make sure everything is clear, legible, and labelled well before submission — this helps avoid delays.
High-quality extension planning drawings are non-negotiable. They communicate your design, ensure legal compliance, assist your contractor and pave the way for smooth approvals. Whether you are building under permitted development or submitting a full planning application, the right drawing package can make all the difference.
If you’re ready to move forward or want a no-obligation consultation, contact AA Drafting today. Let us convert your ideas into technically robust, planning-approved drawings so your extension can get built efficiently and beautifully.
3-7 Sunnyhill Rd
Streatham Wells
Lambeth
London SW16 2UG